专题专栏 > 行政执法公示 > 自然资源和规划局 >   正文
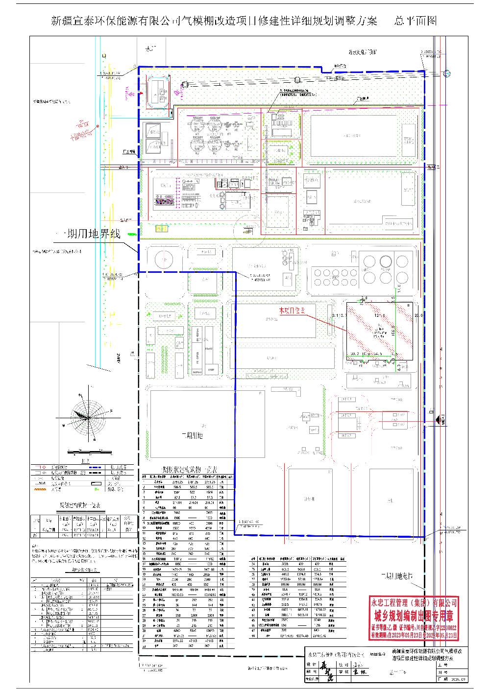
建设工程规划许可证及建设工程设计方案总平面图批后公示
时间:2025-11-12 17:38 来源:第十三师新星市 作者:自然资源和规划局

项目名称:新疆宣泰环保能源有限公司气模棚改造项目

证书编号:建字第6693092025GG0006592

公示类别:工程规划许可证

建设单位:新疆宣泰环保能源有限公司

用地位置:第十三师淖毛湖经济技术开发区淖毛湖工业园

建筑规模:新建一座焦棚,总建筑总面积 12974.12㎡,计容面积 25948.24㎡。

公示附图:详见项目规划总平面图

公示期限:长期

公示日期:20251112日至规划竣工验收

经办单位:第十三新星市自然资源和规划局

联系电话:0902—2566096

    箱:1427802290@qq.com

附加说明:依据《中华人民共和国土地管理法》、《中华人民共和国土地管理法实施条例》、《中华人民共和国城乡规划法》、《中华人民共和国行政许可法》、《自然资源部办公厅关于印发〈自然资源领域基层政务公开标准指引〉的通知》,特此公示。如有意见和建议,请于公示时间内向我局反馈。

信访电话:0902—2566096

    件: